imagen1
imagen2
imagen3
imagen4
imagen5
imagen6
imagen7

 

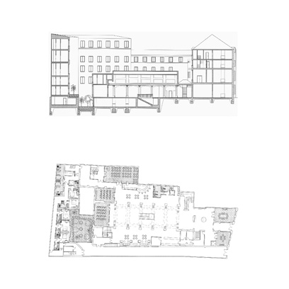
>NH BRUSELAS

 

 

 

NH HOTELES

 

Bruselas - Bélgica

 

 

 

 

 

 

 

 

 

 

 

 

 

 

 

 

Proyecto básico.
5.189 m2 - 90 habitaciones.

 

Este antiguo edificio, construido en el primer tercio del s. XX y sede de una entidad bancaria, se rehabilitó como hotel.

 

Mientras que en las edificaciones posteriores la transformación fue total, en el edificio principal se preservaron los elementos de mayor valor arquitectónico, tales como el patio de operaciones con una bóveda apoyada sobre capiteles y columnas de diseño clásico.

 

La fachada principal se restauró recuperando los acabados originales de revocos, molduras, carpinterías y cerrajerías.

 

| Español | English