imagen1
imagen2
imagen3
imagen4
imagen5
imagen6
imagen7

 

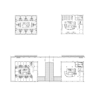
> HOTEL NH BARAJAS

 

 

 

IRAILA

 

Alameda de Osuna - España

 

 

 

 

 

 

 

 

 

 

 

 

 

 

 

Proyecto básico y de ejecución y Dirección de obra.
7.560 m2 - 181 habitaciones.

 

El hotel se diseñó en dos edificios independientes con un sótano común con el resto de edificios de la manzana.

 

La austeridad en las formas se enriquece mediante la combinación de diferentes tonos de piedra, la inclinación de la cornisa sobre pilastras, la inserción de piezas macizas salientes y el color bronce oscuro de las carpinterías.

 

Existe una clara intención de expresión arquitectónica a través de la secuencia del color, del granito rojo África de la base, y del color más claro del granito rosa porriño de la zona intermedia.

 

| Español | English