imagen1
imagen2
imagen3
imagen4
imagen5
imagen6
imagen7

 

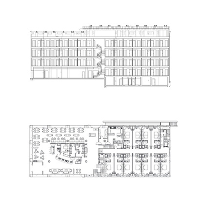
> HOTEL IBIS ALCALÁ DE HENARES

 

 

 

SAN ROMÁN HOSTELERA DE INVERSIONES

 

Alcalá de Henares - España

 

 

 

 

 

 

 

 

 

 

 

 

 

 

 

Proyecto básico y de ejecución y Dirección de obra.
2.900 m2 - 92 habitaciones.

 

Un concepto de hotel popular resuelto con austeridad formal sin renunciar a la expresividad, pensado para trabajadores que se desplazan entre semana.


El revestimiento, los huecos, el remate de la cornisa en la coronación inclinada apoyado sobre pilastras y los resaltes de granito macizo son elementos conjugados en el diseño de la fachada ventilada de doble piel.


El tratamiento flameado de la superficie exterior de las piezas de granito rosa porriño y rojo África, proporciona el aspecto natural a la piedra realzando sus características.

 

| Español | English