imagen1
imagen2
imagen3
imagen4
imagen5
imagen6
imagen7

 

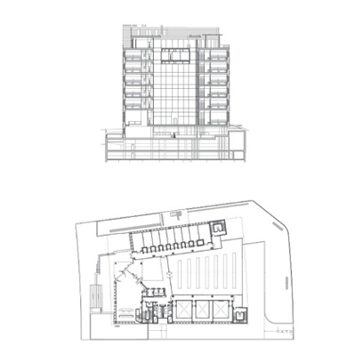
> BIOINCUBADORA U.A. CANTOBLANCO

 

 

 

PARQUE CIENTÍFICO DE MADRID

 

Madrid - España

 

Edificio para actividades de I+D+I

 

 

 

 

 

 

 

 

 

 

 

 

 

 

 

Proyecto básico y de ejecución.
15.000 m2.

 

El aprovechamiento de la luz natural, la eficiencia energética, la diversidad de configurar espacios de diferentes superficies, la modularidad de los sistemas y la gestión inteligente de las instalaciones y la seguridad fueron aspectos determinantes del diseño que ganó el concurso convocado por la Fundación Parque Científico de Madrid.

 

Los requerimientos específicos de la biotecnología, la quimiotecnología, la nanotecnología, las salas limpias, salas pilotos, etc... constituyeron las exigentes características que se tuvieron en cuenta en el diseño de los espacios específicos del edificio.

| Español | English